Двухуровневая квартира в ЖК Гламур и жадность
Просторная квартира со вторым светом, для семьи с двумя детьми
Город: Калининград
Объект: Двухуровневая квартира, со вторым мансардным уровнем, площадью 130 м.кв. в исторической части города.
Клиенты: Глава семьи технический руководитель в IT-сфере, оба родителя работают удаленно из дома. В семье две дочери-погодки школьного возраста.

С чем пришли заказчики:
Илья и Татьяна жили в родном городе в Сибири и, когда появилась возможность, переехали в Калининград в более мягкий климат, ближе к морю.
Им понравился тихий исторический район с красивыми немецкими виллами. Они купили квартиру в новом доме, построенном в традиционном немецком стиле.
Илье был нужен отдельный кабинет с хорошей звукоизоляцией, чтобы ничто не мешало работе. А Татьяна хотела спокойный современный интерьер с большой кухней и гостиной для уютных вечеров в кругу семьи, две детские со всем необходимым и рабочее место для себя.
Главные проблемы:
- Мало открытого пространства,
- Небольшая гостиная,
- Очень высокий потолок кухни при небольшой площади,
- Единственная комната без двери на втором мансардном этаже,
- Необходимость разместить много вещей,
- Один санузел.
Задачи:
- Использовать большую высоту кухни и второй свет.
- Сделать просторую кухню и гостиную для семейных вечеров.
- Подчеркнуть историзм места.
- Найти возможность разместить две детские комнаты.
- Предусмотреть достаточно мест для хранения вещей.
- Сделать интерьер спокойным, чтобы ничто не нагружало голову, не мешало работать и отдыхать.
Решения:
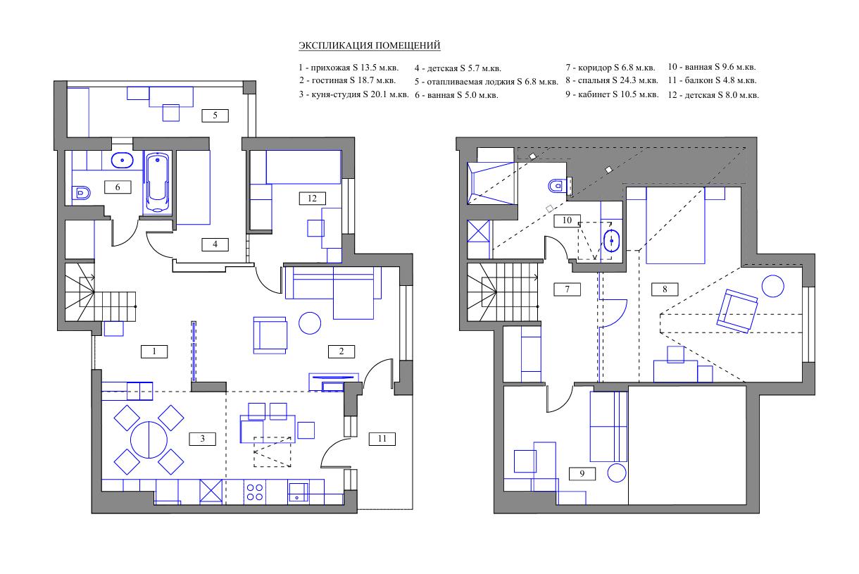
- Планировка:
Было:
Стало:

Квартиру разделили на гостевую и детскую часть на первом уровне и приватную для родителей на втором:
- Первый уровень: гостиная, кухня, две небольшие детские, санузел с ванной и холл с лестницей наверх.
- Второй уровень: спальня родителей, кабинет главы семьи, санузел с душем, небольшая гардеробная для хранения.
- На первом этаже объединили гостиную, кухню, холл и лестницу, чтобы создать ощущение простора и свободы.
- Обернули несущую колонну в цетре квартиры зеркалом, чтобы растворить ее в пространстве.
- Использовали большую высоту кухни, чтобы разместить кабинет на антресоли.
- Сделали дверь в кабинет из холла второго этажа.
- Поставили легкую перегородку из рифленого стекла, чтобы прикрыть гостиную от входной двери, сохранив естественный свет в прихожей.
- Разделили комнату на две небольшие детские со всем необходимым. К комнате старшей дочери присоединили остекленный балкон, вывели на него радиатор и заложили теплый пол.
- В санузлах предусмотрели большие столешницы и вместительные ящики для мелочей.
- Предусмотрели теплый пол в холле, кухне и санузлах.
- В гостиной и кухне заменили радиаторы от застройщика на дизайнерские.
- На втором этаже основную площадь отвели под спальню родителей.
- Над ванной добавили санузел с душем.
- Заменили бетонную лестницу от застройщика на более компактную и легкую на металлокаркасе. На освободившемся месте добавили антресоль для постирочной зоны.
- Гостиная – место для отдыха и свободное пространство
- Для атмосферы спокойного уюта применили светлые, теплые природные оттенки, мягкую подсветку и открытый огонь спиртового камина.

- Как декор использовали фотообои с изображением любимой заказчиками тайги, сделали дверь скрытого монтажа из детской.

- Холл отделили полупрозрачной перегородкой, чтобы скрыть гостиную от посторонных глаз со стороны входной двери и создать приятное первое впечатление от света, струящегося сквозь рифленое стекло.

- Холл – начало дома
- Добавили обстановке историзма с помощью классических элементов и состаренных зеркал.
- На входе разметили большой открытый шкаф на металлокаркасе для верхней одежды и обуви.

- Лестницу сделали легкой и современной. Добавили подсветку ступеней для безопасности. Рядом встроили вместительный шкаф для сезонной одежды.

- Кухня – удобство и умная техника
- Круглый стол с уютными подвесными светильниками, чтобы обедать с семьей и ужинать с друзьями.

- Кабинет на антресоли со стеклянной перегородкой. Звукоизоляция без потери солнечного света и объема кухни.

- Вместительная кухня со встроенным холодильником, шкафом для красивой посуды и пеналом, скрывающим газовый котел. Никакие технические элементы не портят вид.

- Кухонный остров – большая рабочая поверхность, дополнительное хранение и место для завтраков.

- Ванная с окном – место для расслабления
- Удобная ванна – чтобы отдохнуть и побыть наедине с собой.
- Подвесные светильники и светодиодная подсветка – для расслабляющей атмосферы.

- Дополнительное зеркало с подсветкой и увеличением для макияжа.
- Большая столешница для косметики и вместительные ящики, чтобы девочки могли поставить всю свою косметику.

- Хранение, коммуникации и доступ к инсталяции за стеновой панелью.

- Комната старшей дочери – небольшая комната девочки-подростка
- Кровать с мягкими бортами и подъемным механизмом для дополнительного хранения.

- Перегородка со стеклоблоками для дополнительного освещения. Стена с магнитной краской для заметок.

- Большой стол и мольберт на светлом утепленном балконе – для учебы и рисования.

- Вместительный шкаф – для личной одежды и обуви.

- Комната младшей дочери – маленькая комната со всем необходимым
- Мягкая кровать с уютным освещением.

- Рабочий стол и стеллаж – все нужное рядом.

- Зеркальная дверь – чтобы посмотреться, не выходя из комнаты.

- Большой шкаф с открытой полочкой и розетками для зарядки телефона и мелочей.

- Кабинет – уединенное место для работы
- Большой стол с тумбой и вместительным пеналом – все нужное под рукой, включая турник. Стеновые панели скрывают вентканал.

- Домашний кинотеатр с проектором и мягким диваном.

- Холл второго этажа – часть спальни родителей
- Ночная подсветка лестницы.

- Небольшая гардеробная с зеркальным фасадом для одежды, белья и гладильной доски.

- Спальня родителей – комфорт и спокойствие
- Стеклянная перегородка – для естественного освещения холла.

- Плотная штора – возможность уединиться.

- Кровать в уютной нише, бра для чтения, подвесные тумбы для мелочей и зарядки телефона.

- Рабочее место Татьяны с большим монитором для работы и просмотра фильмов, лёжа в кровати.

- Мягкое кресло возле окна с красивым видом на город, чтобы выпить ароматный кофе и почитать любимую книгу.

- Дополнительный санузел в мансарде – душ и постирочная
- Большая столешница для мелочей и зеркало с подсветкой.

- Душевая и шкаф для стиральной и сушильной машин.

- Санузел с окном – естественное освещение и вентиляция.

- Освещение – уют и комфорт
- Скрытая подсветка и подвесные светильники – в гостиной, кухне, холле и комнатах для создания уютной атмосферы.
- Яркий верхний свет – возможность увидеть все.
- Встроенная подсветка лестницы – безопасное вечернее освещение.
- Бра над кроватями – комфортное чтение перед сном.
- Бра над рабочими столами – сохранение зрения.
- Система переключателей – управление освещением из разных мест, можно не вставать с дивана или кровати, чтобы убавить или выключить свет.
- Умная бытовая техника
- Полностью встроенная бытовая техника на кухне, включая холодильник, посудомоечную машину и измельчитель.
- Вентиляционная система – свежий воздух без открытых окон.
- Компьютеры, принтеры, робот-пылесос, проектор – всё продумано.
- Оформление окон – комфорт в каждой зоне
- Римские и рулонные шторы скрывают от глаз соседей.
- Плотные портьеры в спальне для уединения, в кабинете для блокировки света во время просмотра фильмов.
- Прозрачная органза для уюта.
- Материалы – долговечность и качество
- Устойчивые покрытия для мебели.
- Керамогранит на полу первого этажа и в санузлах.
- Инженерная доска из натурального дерева в гостиной, спальнях и кабинете.
- Стойкая краска для стен – легко мыть и можно перекрашивать в будущем.
- Стелянные перегородки – сохранение света и простора.
- Стиль – современный, спокойный и расслабляющий, с историческим настроением, контрастными деталями и элементами лофта
- Стекло и зеркала – свет и воздух.
- Природные цвета и изображения пейзажей – уютная, теплая атмосфера.
- Главный акцент – перегородка на просвет из цветного и белого рифленого стекла.
Результат:
Квартира получилась стильной и современной, наполненной особой атмосферой уюта. Она идеально подходит для комфортной жизни Ильи, Татьяны и их детей. Планировка четко разделяет пространство на гостевую и личные зоны, что позволяет эффективно работать, полноценно отдыхать и наслаждаться временем с близкими.
Просторная квартира с успокаивающей атмосферой природы — место тишины и комфорта для любящей семьи в суете города.