Дом Холмы Томск
Современный дом для семьи с двумя детьми
Город: Томск
Объект: Двухэтажный дом 135 м.кв., в коттеджном поселке недалеко от города.
Клиенты: Семья с двумя разнополыми детьми школьного возраста. Родители значительную часть жизни занимались благоустройством и озеленением.

С чем пришли заказчики:
Олег и Яна много лет работали с растениями, но жили в шумном городе. Дети подросли, и городской квартиры стало недостаточно. Они хотели жить в тишине на природе, построить себе баню, пить утренний кофе на свежем воздухе, жарить шашлык с друзьями у себя в саду. Олегу было важно, чтобы в доме всем хватало места: было удобно и просторно. А Яна хотела светлый, современный дом, где будет много света и воздуха, чтобы чувствовать себя свободно и легко.
Дом с участком купили у застройщика, когда строительство только началось.
Главные проблемы:
- Небольшой объем дома,
- Необходимость разместить много вещей,
- Дети разного пола и возраста,
- Возможность принимать много гостей,
- Недостаток открытого пространства.
Задачи:
- Сделать планировку дома удобной для всей семьи.
- Создать просторную кухню и гостиную для семейных вечеров и приема гостей.
- Разместить системы хранения, чтобы все вещи вошли и была возможность разместить новые.
- Выбрать долговечные материалы – Олег и Яна хотели построить дом и пожить спокойно.
- Создать лаконичный интерьер в светлых оттенках, с ощущением свободы, добавить света и воздуха.
Решения:
- Планировка:
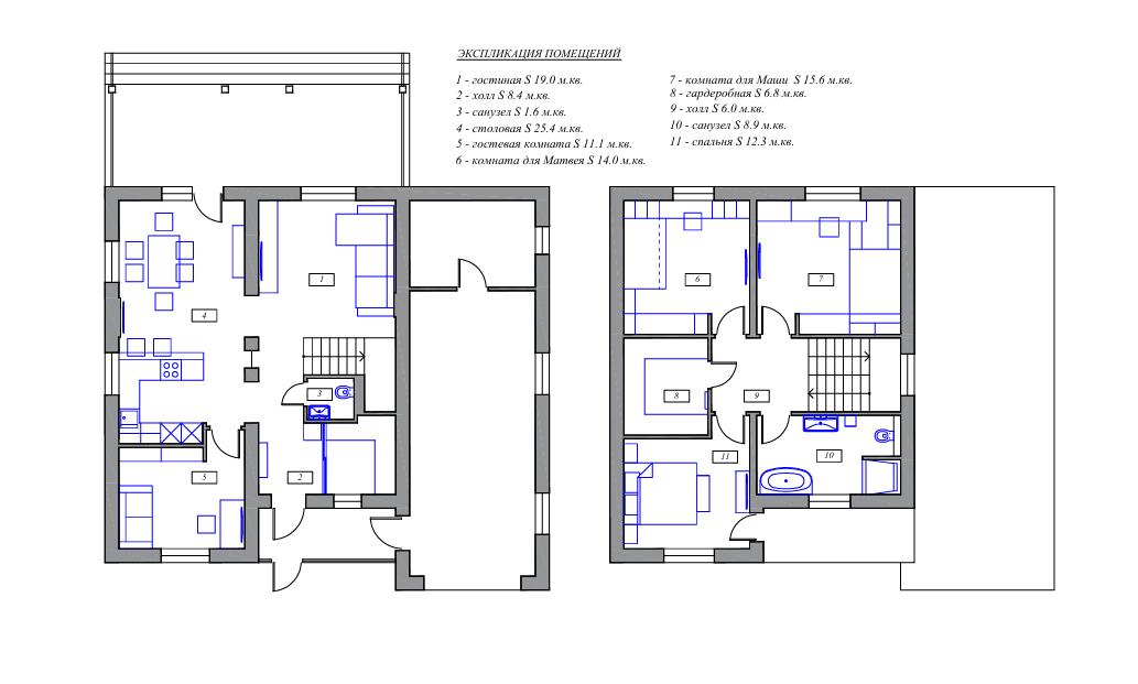
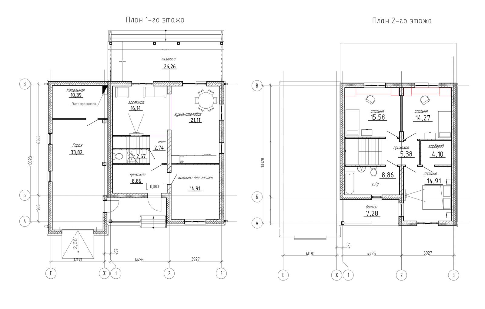
Было:
Стало:

Разделили дом на гостевую часть на первом этаже и приватную на втором:
- Первый этаж: гостиная, кухня, кабинет с возможностью разместить гостей на ночь, гостевой санузел и холл с гардеробной для верхней одежды.
- Второй этаж: спальня родителей, комнаты детей, гардеробная и ванная комната.
- На первом этаже гостиную, кухню, холл и лестницу сделали единым большим пространством для семейных вечеров и приема гостей.
- Чтобы еще увеличить гостиную, оставили лестницу открытой, использовали ограждение из закаленного стекла.
- Обернули несущие колонны в зеркала, чтобы растворить их в пространстве.
- Немного уменьшили кабинет, за счет этого добавили объема кухне.
- Санузел сделали шире и комфортнее, гардеробную при входе отделили раздвижной перегородкой.
- На втором этаже в комнатах детей предусмотрели все необходимое, в том числе большие шкафы для хранения личных вещей.
- Увеличили гардеробную, немного уменьшив спальню, где родители проводят только ночи.
- Гостиная – место для отдыха, свет и воздух
- Для создания ощущения свободы, света и воздуха использовали белый цвет, большое количество глянцевых поверхностей, стекло и зеркала.

- Чтобы уравновесить глянец, сделать интерьер более уютным, добавили стеновые панели с текстурой дерева и насыщенный цвет в шторах.

- Объединили кухню, гостиную и холл одинаковым керамогранитом на полу.

- Чтобы еще увеличить гостиную, оставили лестницу открытой, использовали ограждение из закаленного стекла.

- Обернули несущие колонны в зеркала, чтобы растворить их в пространстве.
- Поскольку в доме нет подвала, чтобы зимой было комфортнее, заложили теплый пол на всей площади первого этажа.

- Встроили в шкаф небольшой спиртовой камин с живым огнем - для особой атмосферы длинными зимними вечерами.

- Для яркого первого впечатления добавили декор: на зеркальных колоннах установили стеклянное панно с пескоструйным рисунком дерева, стеклянной жилкой и фьюзингом, напоминающим капли дождя.

- Кухня – удобство и свобода
- Полностью встроенная техника в цвет фасадов кухни – удобная и дополняющая лаконичный стиль.
- Мойка у окна – поднимая глаза, хозяйка увидит свой прекрасный сад.

- Объемный кухонный остров – большая рабочая поверхность.

- Столовая зона – стол, который раскладывается для большой компании.

- Шкаф-витрина с подсветкой – для красивой посуды и напитков.

- Кабинет – уединенное место для работы
- Звукоизоляция от гостиной – работа без отвлекающих факторов.

- Удобный стол с вместительными ящиками – все под рукой.

- Раскладывающийся удобный диван – чтобы разместить гостей на ночь.

- Неглубокий, но объемный шкаф для документов и одежды гостей.

- Холл и гардеробная – начало дома и место для хранения верхней одежды
- Большое зеркало при входе, навесная тумба с ящиком для ключей.

- Хрустальные бра для освещения со стороны лица.

- Гардеробная отделена от холла матовой стеклянной перегородкой – вся верхняя одежда и обувь под рукой, но спрятана от глаз.

- Встроенные полки для обуви, ящики для ключей и перчаток, штанги для одежды – всё на своих местах.

- Гостевой санузел – все необходимое в небольшом объеме
- Использовали пространство под лестницей с пользой.

- Небольшая, но удобная раковина и гигиенический душ.

- Инсталляция, коммуникации и хранение чистящих средств за стеновой панелью – легкий доступ и ничего не портит интерьер.

- Спальня родителей – комфорт и спокойствие
- Высокое мягкое изголовье – для чтения сидя.
- Пуф в ногах – место для хранения белья и возможность бросить халат на ночь.

- Подвесные тумбы у кровати – хранение мелочей и зарядка телефона.
- Бра у изголовья – уютное приглушенное освещение.

- Комната Маши – современная комната подростка
- Кровать на подиуме с подсветкой, мягким бортиком и полками для мелочей – все нужное под рукой, можно лишний раз не вставать с кровати.

- Скрытые подсветки и бра у кровати – создают атмосферу.

- Большой стол – возможность разложить все учебники и гаджеты.

- Вместительный шкаф – для личной одежды и обуви.

- Комната Матвея – личная зона увлеченного мальчика
- Большой шкаф – все вещи по местам.
- Комфортная кровать – для сладкого сна.

- Просторный стол с местом под стационарный компьютер – для игр, школьных занятий и всевозможных увлечений.

- Открытые полки – для коллекции игрушечных роботов и рисунков.

- Ванная – место для расслабления
- Удобная ванна – чтобы отдохнуть и побыть наедине с собой.
- Подвесные светильники – для расслабляющей атмосферы.

- Умное зеркало с подогревом – не запотевает.
- Вместительные ящики – чтобы вошло все нужное.

- Комфортная душевая – на матовом стекле меньше видны следы от капель.

- Гардеробная – порядок в доме
- Просторное место для чемоданов, одежды, стиральной машины и постельного белья.

- Выдвижные ящики для белья и носков.
- Отдельное место для гладильной доски.

- Освещение – уют и комфорт
- Скрытая подсветка – в гостиной, кухне, холле и комнатах для создания уютной атмосферы.
- Яркий верхний свет – возможность увидеть все.
- Встроенная подсветка лестницы – безопасное вечернее освещение.
- Бра над кроватями – комфортное чтение перед сном.
- Система переключателей – управление освещением из разных мест, можно не вставать с дивана или кровати, чтобы убавить или выключить свет.
- Умная бытовая техника
- Полностью встроенная бытовая техника на кухне, включая посудомоечную машину и измельчитель.
- Вентиляционная система – свежий воздух без открытых окон.
- Принтер, компьютеры, робот-пылесос – всё продумано.
- Оформление окон – комфорт в каждой зоне
- Римские шторы для вечернего уединения.
- Бирюзовые портьеры и прозрачная органза для уюта.
- Материалы – долговечность и качество
- Устойчивые покрытия для мебели.
- Керамогранит на полу первого этажа и в санузлах.
- Паркетная доска из натурального дерева в спальнях.
- Стойкая краска для стен – легко мыть и можно перекрашивать в будущем.
- Двери из массива дерева – отличная звукоизоляция.
- Стиль – современный, лаконичный и легкий, с сочными акцентами
- Стекло и зеркала – свет и воздух.
- Деревянные панели на стенах – уютная, теплая атмосфера.
- Главный акцент – декоративное панно из стекла в самом сердце дома.
Результат:
В результате получился светлый, стильный, просторный и современный дом, идеально подходящий для комфортной жизни именно этой семьи. Планировка разделяет дом на гостевую и семейную зоны, создает возможность хорошо отдыхать, спокойно работать, общаться с близкими и принимать гостей.
Теплый, удобный и наполненный жизнью — дом для семьи, где любят своих близких и ценят время, проведенное вместе.